Anteater Learning Pavilion, University of California, Irvine - Exterior

Anteater Learning Pavilion
University of California, Irvine

Location

Irvine, California

Owner

University of California, Irvine

Collaborators +

Design-Build Contractor: Hathaway Dinwiddie Construction Co.

Structural Engineering: DCI Engineers

MEP Engineering: Alvine Engineering

Civil Engineering: FPL and Associates

Landscape Architecture: AHBE | MIG

Project Size

94,139 square feet

Project Status

Completed

Certifications

Certified LEED New Construction Platinum

Delivery Method

Design-Build

Services

Architecture, Planning

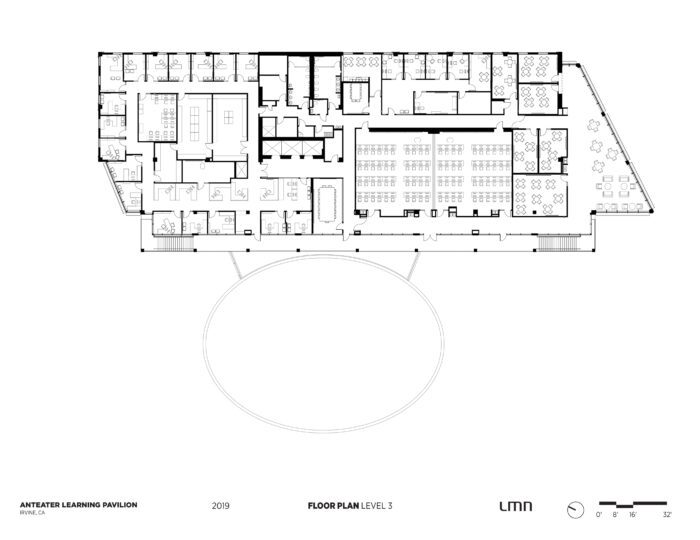
The Anteater Learning Pavilion (ALP) is the first active learning classroom building in the State of California, reinforcing UCI’s commitment and strategic plan to develop new educational facilities that foster pedagogical innovation across academic disciplines and programs.

The adaptability of teaching and collaboration spaces exemplifies the diversity of UCI’s educational programs and culture of engagement. All classrooms are designed to serve numerous academic disciplines through a variety of classroom configurations—including many forms of active learning pedagogy. Classroom and supporting social spaces work together to form a vibrant ecosystem of interdisciplinary learning—stitched into the campus fabric to activate the Aldrich Park neighborhood.

ALP plays a dynamic role in enriching the pedestrian experience between the inner and outer pedestrian malls. Building activity is linked to the ground plane through vertical and horizontal pathways, as well as strategic distribution of student gathering spaces along the building perimeter. The porous ground plane allows the class-break surge—as many as 1,300 students—to be channeled through multiple pathways, which in turn link to social nodes that further reinforce social activity. The strength of the building design embraces student life in all forms of learning activities and social interactions.

Photography: Adam Hunter, Mike Schwartz

Hathaway-Dinwiddie-Construction_Logo_Site

Hathaway Dinwiddie Construction

Design-Build Contractor

WEBSITE