UC Santa Barbara, Interactive Learning Pavilion - Exterior

Interactive Learning Pavilion
University of California, Santa Barbara

Location

Santa Barbara, California

Owner

University of California, Santa Barbara

Collaborators +

General Contractor: C.W. Driver

Structural Engineering: Saiful Bouquet, Inc.

MEP Engineering: Integral Group

Civil Engineering: Stantec

Landscape Architecture: Arcadia Studio, Inc.

Lighting Design: Integral Group

Graphics/Signage: Entro

Project Size

95,000 square feet

Project Status

Completed

Certifications

Certified LEED New Construction Gold

Services

Architecture, Interior Design, Planning

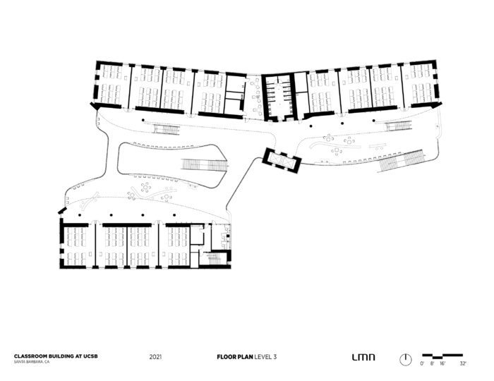
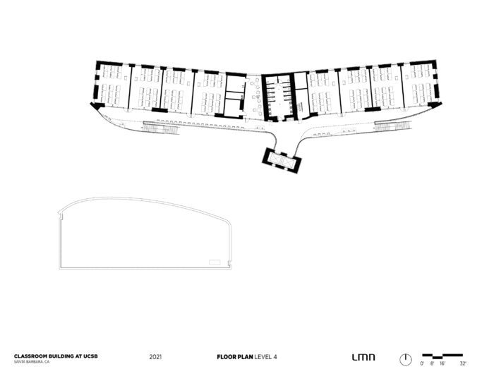
The Interactive Learning Pavilion is UC Santa Barbara’s first new classroom building since 1967, designed as a vibrant campus hub for learning and gathering. Spanning 90,000 square feet, the building features five lecture halls, three large flexible rooms, 20 classrooms, and inviting outdoor terraces and walkways. Its open-air central paseo leverages Santa Barbara’s coastal climate, encouraging movement and interaction while seamlessly connecting to Library Mall and Science Walk.

The building’s curvilinear forms, perforated aluminum walkways, and dynamic interplay of light and shadow create a lively atmosphere day and night. Exterior materials, including high-performance concrete panels and polished concrete block walls, reflect the region’s topography and local architectural vernacular. LEED Gold certified, the Pavilion incorporates passive design strategies, locally sourced materials, and supports sustainable transportation with expanded pedestrian and bike infrastructure. Emphasizing active and team-based learning, the Pavilion’s flexible spaces accommodate diverse teaching styles and departments, while its elevated public areas offer sweeping campus and ocean views, fostering collaboration and innovation.

Photography: Tim Griffith, Patrick Price

Interactive Learning Pavilion-10_Copyright Patrick Price

Facing the building’s internal public spaces, the building takes a radically different form by sculpting the shared exterior terraces with a more loose, organic formal language, driven by the efficient planning of the lecture halls within.

Interactive Learning Pavilion-06_Copyright Patrick Price
UC Santa Barbara, Interactive Learning Pavilion - Exterior

Perforated aluminum railings on exterior stairs and walkways are lightweight, anti-corrosive, and easy to maintain on the campus’s marine environment, while also allowing transparency of the building’s edges and the activity happening in and around it.

“A gem at the center of our campus, the Interactive Learning Pavilion is a model of innovation not only in architectural design, but in interactive learning and instructional technology. ”

– Henry T. Yang, Chancellor, UC Santa Barbara

Selected Awards

2026 WAN Awards, Finalist

2024 Fast Company’s Innovation by Design Awards, Honorable Mention, Wellness Category

2024 Chicago Athenaeum, American Architecture Award

2023 World-Architects, US Building of the Year