Seattle Asian Art Museum - Interior

Seattle Asian Art Museum

Location

Seattle, Washington

Owner

Seattle Art Museum

Collaborators +

Owner's Representative: OAC Services, Inc.

General Contractor: BNBuilders, Inc.

Structural Engineering: Magnusson Klemencic Associates

MEP Engineering: Rushing

Civil Engineering: Coughlin Porter Lundeen

Landscape Architecture: Walker Macy

Lighting Design: Fisher Marantz Stone

Historic Preservation: BOLA Architecture and Planning

Project Size

New area: 13,905 square feet

Renovated area: 50,345 square feet

Project Status

Completed

Certifications

Certified LEED Commercial Interiors Gold

Services

Architecture, Interior Design, Planning, Renovation + Adaptive Reuse

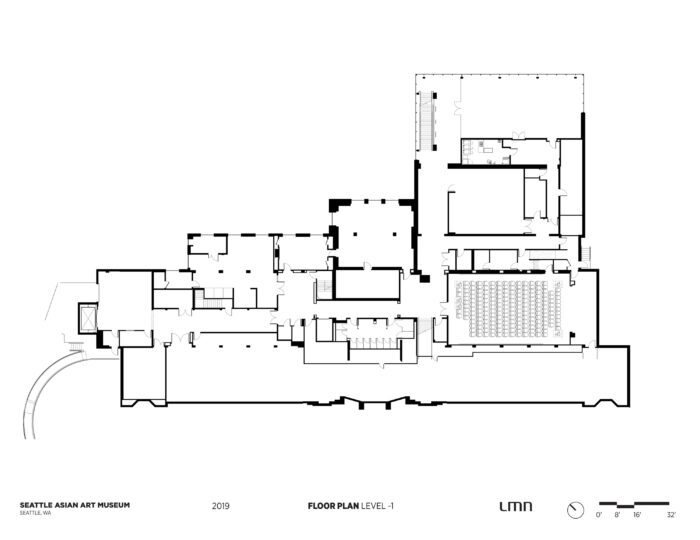
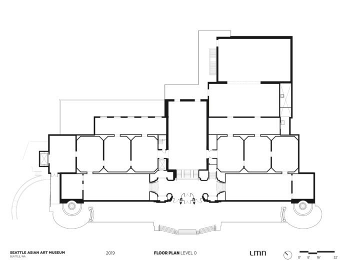
The Seattle Asian Art Museum’s expansion and renovation marks a transformative chapter for this historic Art Deco landmark, nestled in an Olmsted-designed city park. As the first major update since 1933, the project restored the original structure, modernized galleries, and introduced new spaces for exhibitions, education, conservation, and community engagement.

The design preserves the building’s architectural heritage while expanding its capacity to showcase a growing collection, including works never before displayed. A modern addition enhances the central Fuller Garden Court and introduces a Park Lobby, creating new circulation paths and strengthening the museum’s connection to the park and community. These improvements foster greater inclusivity and accessibility, supporting the museum’s mission to celebrate Asian art and culture. The revitalized museum now offers expanded opportunities for storytelling, education, and cultural exchange, deepening its role as a vital resource for both the city of Seattle and the broader Pacific Northwest community.

Photography: Tim Griffith, Adam Hunter

SAAM_16

Daylighting was introduced to the center galleries by light-boxes with tunable LED lighting in place of existing skylights, emulating natural daylight. This artificial lighting enables the museum to provide flexibility for future displays, showcase new art, and better preserve its collection.

Seattle Asian Art Museum - Interior
Seattle Asian Art Museum - Interior

The physical changes have been an opportunity for the museum to launch a new Asian Paintings Conservation Center, which will address the lack of US conservators specializing in Asian art. In consultation with colleagues from 19 museums, SAM’s chief conservator has led the creation of the new facility that will serve the region.

“We cannot imagine a more sensitive renovation that answers to the eccentricities of a historic building, public scrutiny, and the technical needs of a 21st -century museum facility.”

– Amada Cruz, Illsley Ball Nordstrom Director and Chief Executive Office, Seattle Art Museum

Selected Awards

2024 WAN Awards Americas, Institutions Category

2022 Chicago Athenaeum, American Architecture Award

2021 WAN Awards, Finalist

2021 Seattle Met, Best of the City, Best Museum

2021 NWCB Outstanding Project of the Year Awards, Stucco

2020 Fast Company’s Innovation by Design Awards, Best Design North America, Honorable Mention

2020 AIA Northwest and Pacific Region Design Awards, Merit Award

2020 AIA Washington Council Civic Design Awards, Citation Award

2020 Fast Company’s Innovation by Design Awards, Best Design Cities, Honorable Mention

2020 AIA Seattle Honor Awards, Honorable Mention

2020 AN Best of Design Awards, Renovation, Editors’ Picks

2020 DJC 2020 Building of the Year, Top 10