Hines Seattle Headquarters - Image Page

Hines Seattle Headquarters

Location

Seattle, Washington

Owner

Hines Interests Limited Partnership

Collaborators +

General Contractor: Sellen Construction

MEP Engineer: Hermanson Company LLP

Lighting Design: Titan Electric with LMN Architects

Furniture Selection: Porter

Material Vendor: Formology Architectural Products

Casework: Custom Interiors

Project Size

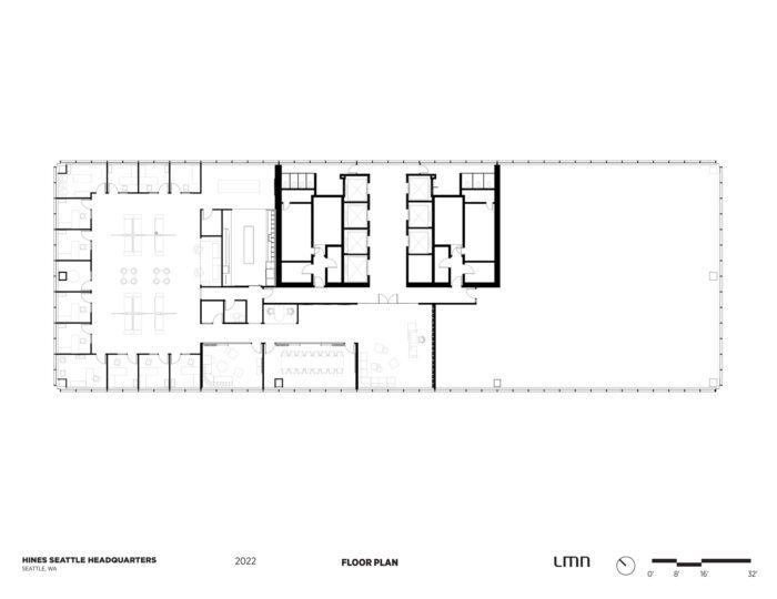
Renovated area: 7,120 square feet

Project Status

Completed

Services

Interior Design, Renovation + Adaptive Reuse

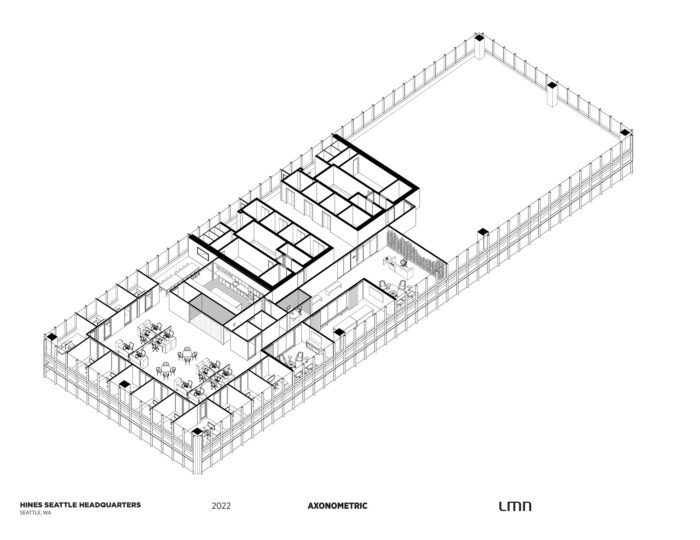
The Hines Seattle Headquarters on the Norton Building’s 8th floor stands as an innovative example of low carbon design due to minimizing waste and maximizing reuse. From a feature wall composed entirely of wood offcuts to a glazed entry pulled from onsite salvaged glass, the design team recycled materials whenever possible and considered the carbon impact of every detail. Designing to retain, reuse, and source salvaged materials resulted in a measured 65% embodied carbon reduction compared to a typical remodel that begins with an empty shell. If the same design solely relied on specifying low-carbon options, it would only result in a 22% reduction.

The resulting remodel introduces clean lines and elegant finishes to the workplace, elevating the already-existing layout into an international-inspired office space complete with conference rooms, breakout spaces, a modernly appointed kitchenette, and communal work area. A reclaimed lumber feature wall made with sourced offcuts stands out in the reception area, while a custom table, made with salvaged wood from a fallen tree in the Madrona neighborhood of Seattle, anchors the large conference room. Thanks to a strong partnership with Hines and shared sustainability goals, LMN was able to create a new standard of low carbon design.

Photography: Benjamin Benschneider

Selected Awards

2024 Chicago Athenaeum, American Architecture Award, Honorable Mention