Division of Continuing Education Building, University of California, Irvine - Exterior

Division of Continuing Education Building
University of California, Irvine

Location

Irvine, California

Owner

University of California, Irvine

Collaborators +

Associate Architect: Carrier Johnson

Design-Build Contractor: Hathaway Dinwiddie Construction Co.

Structural Engineering: DCI Engineers

MEP Engineering: Alvine Engineering

Electrical Engineering: Stantec

Civil Engineering: FPL and Associates

Landscape Architecture: AHBE Landscape Architects

Project Size

75,000 square feet

Project Status

Completed

Certifications

Certified LEED New Construction Platinum

Delivery Method

Design-Build

Services

Architecture, Interior Design, Planning

The new heart of UC Irvine’s Division of Continuing Education (DCE) establishes a social nexus for students from diverse backgrounds, woven into the campus fabric and responsive to the local climate. Indoor and outdoor functions blend into a pattern of fluid interactions, united by a central outdoor courtyard, coffee shop, and flexible event spaces.

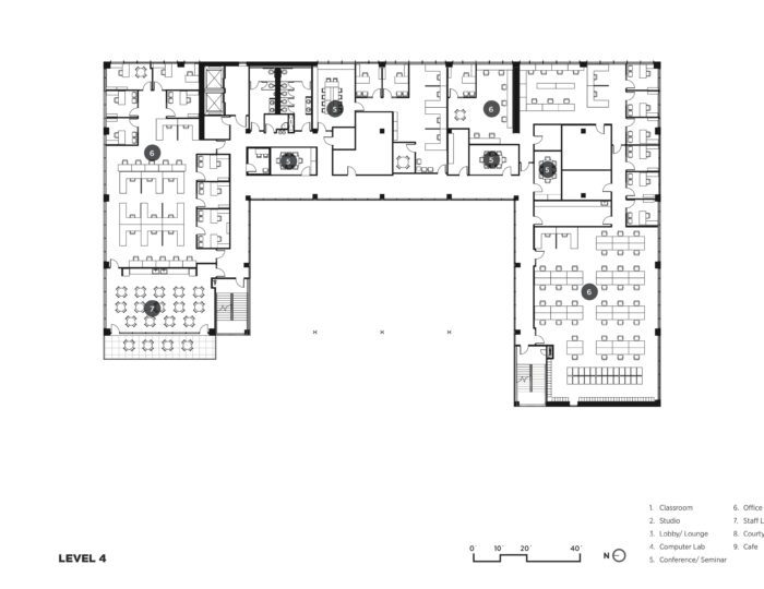
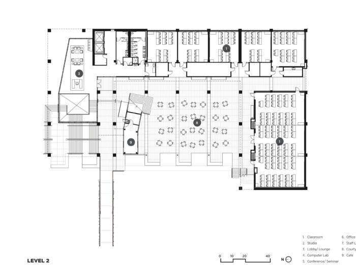
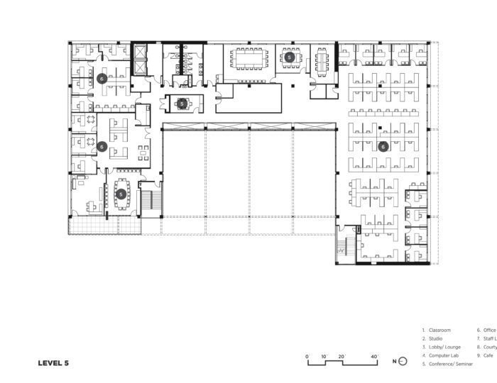
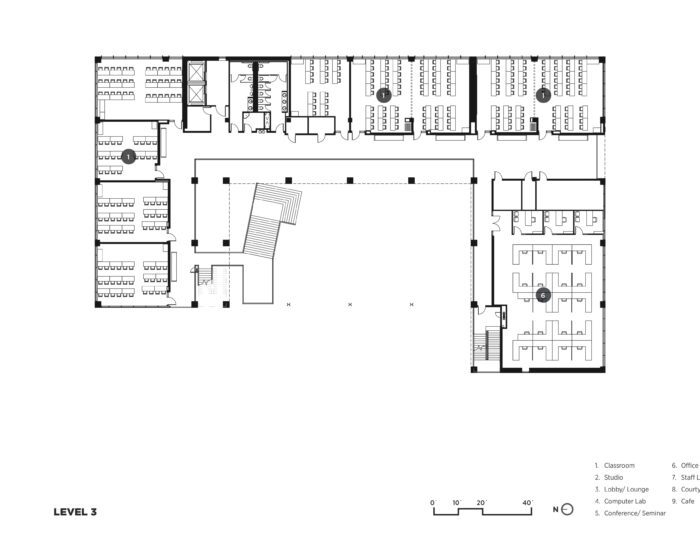
The site, located on the rapidly developing east side of the 1,500-acre campus, anchors a cluster of buildings dedicated to the DCE program that previously lacked a campus identity within the UCI framework. New classrooms, offices, collaboration spaces, and informal lounges expand the program’s offerings and redefine its educational mission. The U-shape of the new facility presents a strong westward orientation to the campus center, embracing the existing buildings as a village and connecting to the academic core via pedestrian bridge.

A lively, buzzing social environment arises through the intersection of multiple circulation pathways and open, daylit informal spaces. The central courtyard organizes the design, giving users a sense of connectivity with the program, as well as the larger campus and the Irvine landscape. Stacked arcades surrounding the courtyard create an additional layer of connection between floors. Circulation also passes through the interior lobby and down one level to a second courtyard on the north side, with the potential to integrate with a future expansion site.

Photography: Lawrence Anderson

Hathaway-Dinwiddie-Construction_Logo_Site

Hathaway Dinwiddie Construction

Design-Build Contractor

WEBSITE