Buxton Center for Bainbridge Performing Arts - Exterior

The Buxton Center for Bainbridge Performing Arts

Location

Bainbridge Island, Washington

Owner

Bainbridge Performing Arts

Collaborators +

General Contractor: Carley Construction

Acoustics, A/V and Theater Planning: Arup

Theater Planning: Shalleck Collaborative Inc.

Structural Engineering: Lund Opsahl LLC

MEP Engineering: PAE Consulting Engineers

Civil Engineering: Saez Consulting Engineers

Landscape Architecture: Groundswell Studio

Lighting Design: Luma Lighting Design

Project Size

New area: 5,400 square feet

Renovated area: 11,300 square feet

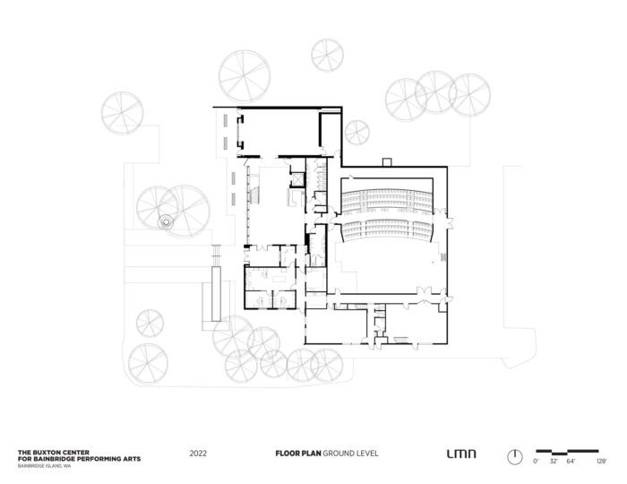
Seating Capacity

224 auditorium

Project Status

Completed

Certifications

Certified LEED New Construction Gold

Services

Architecture, Interior Design, Planning, Renovation + Adaptive Reuse

Just across Elliott Bay from Seattle, Washington, the Buxton Center for Bainbridge Performing Arts re-envisions a beloved community theater with a sensitive expansion and renovation, inaugurating a new era for the Bainbridge Island arts community. Reorienting the building to the axial plan of Bainbridge’s Town Square, the new state-of-the-art cultural space helps build a stronger connection to the civic heart of the island.

The 16,700-square-foot facility comprises 11,300 square feet of renovated area with a 5,400-square-foot expansion. A dramatic new sculptural roof and ceiling plane of expressed wood structure ties together the new program spaces and gives the building a clear identity. The wood-and-glass curtain wall encloses a double-height lobby space, immersing patrons in the lush woodland landscape during the day and creating a welcoming beacon at night. All told, the Buxton Center is set to reinvigorate the local arts community and add a new layer of activation to the cultural heart of Bainbridge Island.

Photography: Lara Swimmer

Buxton-Center-for-Bainbridge-PA_17.jpg

The design of the new building centered on preserving the intimacy of the original theater, while strengthening connections with the public through a more transparent façade and expressive building form.

Buxton-Center-for-Bainbridge-PA_18.jpg
Buxton-Center-for-Bainbridge-PA_19.jpg

The auditorium has been fully overhauled with a reconfigured seating bowl with sound and light locks, better sightlines, and improved accessibility for all patrons.

“This incredible renovation and expansion signifies not only a physical transformation but also a renewed commitment to our mission of fostering creativity and building community.”

– Elizabeth Allum, Executive Director, The Buxton Center

Selected Awards

2025 WAN Awards Americas, Shortlisted

2024 AIA Washington Council Civic Design Awards, Honor Award

2024 Archello Awards Finalist, Theatre Building of the Year

2024 IIDA Northern Pacific Chapter INawards, INpublic Award

2024 Chicago Athenaeum, American Architecture Award