Seattle Academy of Arts and Sciences Middle School - Interior

Seattle Academy of Arts and Sciences Middle School

Location

Seattle, Washington

Owner

Seattle Academy

Collaborators +

Owner's Representative: Seneca Group

General Contractor: GLY Construction

Structural Engineering: Coughlin Porter Lundeen

MEP Engineering: PAE Consulting Engineers

Civil Engineering: Coughlin Porter Lundeen

Landscape Architecture: Swift Company, LLC

Lighting Design: dark | light design

Project Size

69,900 square feet

Project Status

Completed

Services

Architecture, Interior Design, Planning

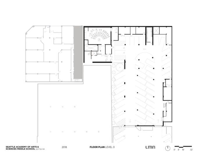
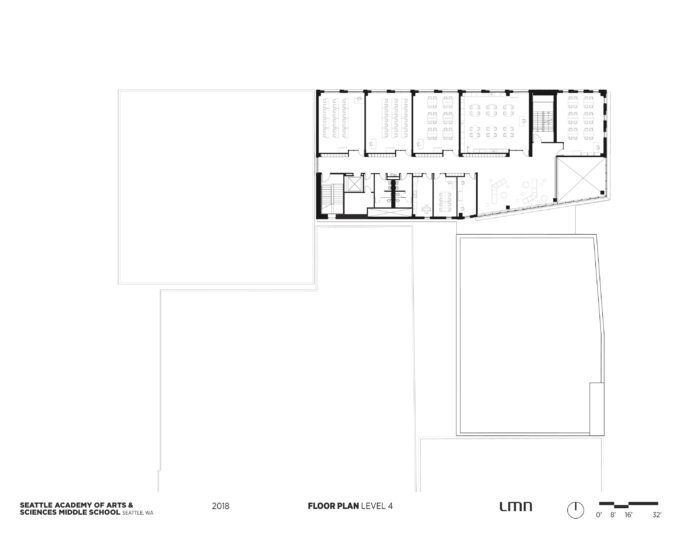
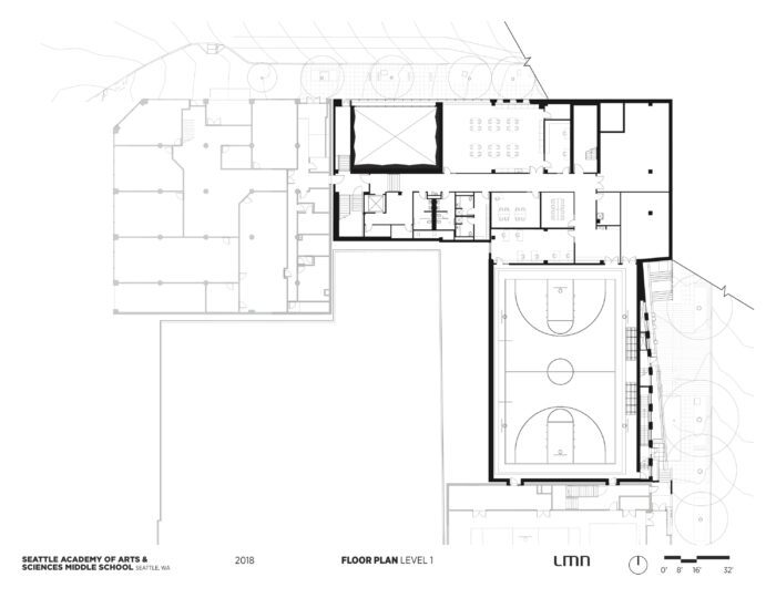
The Seattle Academy of Arts and Sciences (SAAS) Middle School advances the school’s urban campus with a vertically configured, six-story academic building that maximizes a compact site and connects with the surrounding Capitol Hill community.

The design integrates educational and athletic spaces, with the academic volume scaled to the commercial core and a lower athletic wing matching the adjacent residential context. Classrooms are organized around collaborative learning areas, featuring glass walls that create transparency and allow activities to flow between spaces. Stepped, double-height collaboration zones cascade through the building, fostering visual and physical connections across grades and encouraging interaction beyond the classrooms. Sustainable features are woven throughout, supporting the school’s commitment to social and ecological responsibility while actively engaging students. The Middle School provides a supportive environment that promotes independence, experimentation, and a dynamic relationship between curriculum and the urban neighborhood, preparing students for discovery and engagement within and beyond the classroom.

Photography: Adam Hunter, Lara Swimmer

Seattle Academy of Arts & Sciences Middle School - Interior

While the stepped collaboration spaces are central to SAAS’s educational mission, they also form the architectural expression of the building. The transparent glazing cascades down the exterior of the building and resolves into a primary gathering space anchoring the urban intersection.

Seattle Academy of Arts & Sciences Middle School - Interior
Seattle Academy of Arts & Sciences Middle School - Exterior

An outdoor space at the entry provides a welcoming, street-level gathering place for students and an urban amenity for the community.

Selected Awards

2023 AIA National Honor Award for Architecture

2022 AIA National Education Facility Design Award

2021 AIA National Honor Award for Interior Architecture